Client
Serviciu
Progres

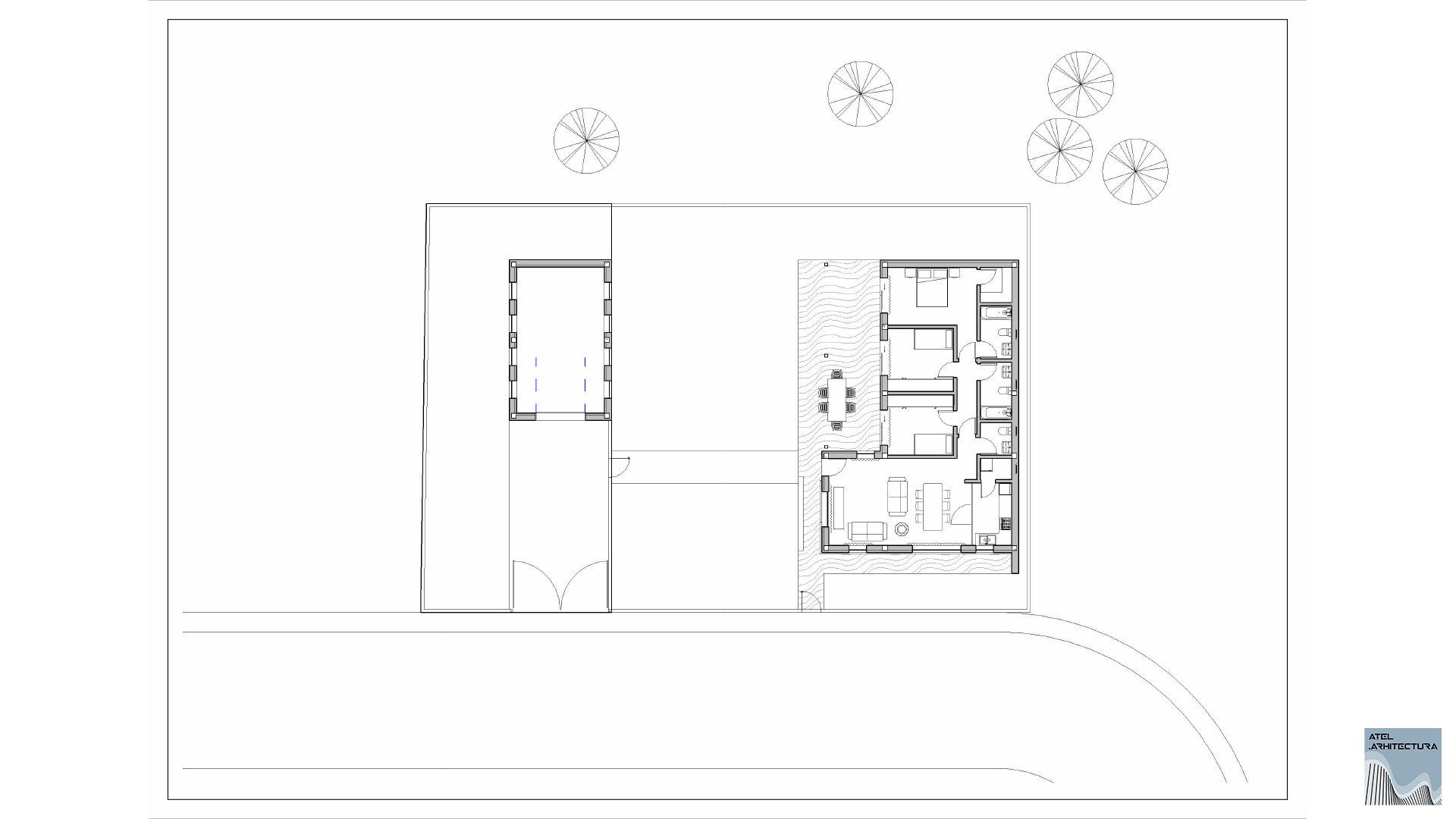
Locuință unifamilială – Echilibru între tradiție și funcționalitate. Această locuință a fost proiectată pentru a răspunde nevoilor unei familii de patru persoane, oferind un echilibru armonios între funcționalitate, confort și integrarea în peisajul specific zonei periurbane.Am organizat spațiile interioare astfel încât să asigurăm o separare clară între zona de zi și cea de noapte, optimizând circulația și intimitatea locatarilor. Zona de zi, amplă și luminoasă, este gândită ca un spațiu deschis, conectat vizual cu exteriorul, oferind un mediu primitor și relaxant pentru întreaga familie.Din punct de vedere estetic, am păstrat un stil arhitectural clasic, inspirat de specificul local, menținând un acoperiș în două ape, element definitoriu pentru locuințele tradiționale din zonă. În același timp, am integrat o pergolă care nu doar că asigură umbrirea terasei, dar contribuie și la un efect vizual coerent, creând impresia unui acoperiș continuu și adăugând un plus de caracter fațadei.Prin această soluție arhitecturală, ne-am dorit să îmbinăm armonios tradiția cu cerințele contemporane de confort și eficiență, oferind astfel o locuință adaptată stilului de viață modern, dar fidelă identității locale.






